Mengenal Pondasi Umpak, Fungsi, Ukuran, Kelebihan, Dan Cara Membuatnya jadi salah satu koleksi terbaik di website ini. Bila gambar tersebut memang yang lagi kamu telusuri, maka kamu sudah ada di halaman yang tepat. Di halaman ini menyediakan kumpulan 34 gambar terkait Mengenal Pondasi Umpak, Fungsi, Ukuran, Kelebihan, Dan Cara Membuatnya, seperti Detail Jenis Jenis Awan Dan Gambarnya Koleksi Nomer 12, Gambar Jenis Jenis Pondasi – 51+ Koleksi Gambar dan juga Gambar Jenis Jenis Pondasi – 51+ Koleksi Gambar. Let’s check it out:
Mengenal Pondasi Umpak, Fungsi, Ukuran, Kelebihan, Dan Cara Membuatnya

source: www.pengadaan.web.id
Mengenal Pondasi Umpak, Fungsi, Ukuran, Kelebihan, Dan Cara Membuatnya …
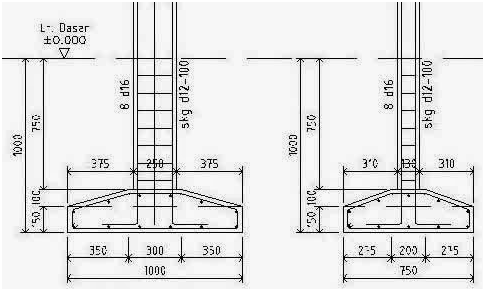
Jenis-jenis Pondasi Bangunan
source: bangunandasar.blogspot.com
Jenis-jenis pondasi bangunan
Konsep 22+ Gambar Pondasi Rumah 2 Lantai

source: dapurcantikminimalist.blogspot.com
Konsep 22+ Gambar Pondasi Rumah 2 Lantai
Jenis Dan Macam Pondasi – Jayawan

source: jayawan.com
Jenis dan Macam Pondasi – Jayawan
Detail Biaya Pondasi Rumah 3 Lantai Koleksi Nomer 18

source: www.kibrispdr.org
Detail Biaya Pondasi Rumah 3 Lantai Koleksi Nomer 18
Mengenal Jenis-jenis Pondasi Bangunan: Panduan Lengkap

source: teknoscaff.com
Mengenal Jenis-jenis Pondasi Bangunan: Panduan Lengkap
Tentang Pondasi Tapak: Definisi, Jenis Dan Gambar – Lamudi

source: www.lamudi.co.id
Tentang Pondasi Tapak: Definisi, Jenis dan Gambar – Lamudi
Pondasi Raft: Pengertian, Jenis, Keunggulan Dan Kekurangan, Dan Cara

source: www.pengadaan.web.id
Pondasi Raft: Pengertian, Jenis, Keunggulan dan Kekurangan, dan Cara …
20 Model, Ukuran Dan Harga Cakar Ayam Pondasi Rumah Beserta Gambarnya

source: www.belgeuse.org
20 Model, Ukuran dan Harga Cakar Ayam Pondasi Rumah beserta Gambarnya …
Mengenal Jenis-Jenis Pondasi Bangunan ~ My HoMe

source: kontemporer2013.blogspot.com
Mengenal Jenis-Jenis Pondasi Bangunan ~ My hoMe
Jenis Pondasi Dangkal Dan Contohnya

source: www.99.co
Jenis Pondasi Dangkal dan Contohnya
Jenis-jenis Pondasi Pada Konstruksi Bangunan – SISIPIL.COM

source: www.sisipil.com
Jenis-jenis Pondasi Pada Konstruksi Bangunan – SISIPIL.COM
Detail Jenis Jenis Awan Dan Gambarnya Koleksi Nomer 12

source: www.kibrispdr.org
Detail Jenis Jenis Awan Dan Gambarnya Koleksi Nomer 12
Belajar SIPIL: Jenis-Jenis Pondasi

source: belajarsipil.blogspot.com
Belajar SIPIL: Jenis-Jenis Pondasi
Fungsi & Jenis Pondasi Dalam Konstruksi Bangunan

source: duniatekniksipil76.blogspot.com
Fungsi & Jenis Pondasi Dalam Konstruksi Bangunan
Pondasi Bored Pile: Pelaksanaan Dan Keuntungannya – SISIPIL.COM

source: www.sisipil.com
Pondasi Bored Pile: Pelaksanaan dan Keuntungannya – SISIPIL.COM
Bahtera Jaya Buana CV: Jenis-Jenis Pondasi Dan Fungsinya

source: bahterajayabuana.blogspot.com
Bahtera Jaya Buana CV: Jenis-Jenis Pondasi dan Fungsinya
Jenis Jenis Pondasi Pada Bangunan Jurnal Arsitektur – Riset

source: www.riset.guru
Jenis Jenis Pondasi Pada Bangunan Jurnal Arsitektur – Riset
√ Penjelasan Lengkap Apa Itu Pondasi Dan Jenis Jenisnya

source: tekniksipil.id
√ Penjelasan Lengkap Apa itu Pondasi dan Jenis Jenisnya
Detail Jenis Rempah Rempah Dan Gambarnya Koleksi Nomer 9

source: www.kibrispdr.org
Detail Jenis Rempah Rempah Dan Gambarnya Koleksi Nomer 9
Construction. Pages: Jenis-Jenis Pondasi Pada Struktur Bangunan

source: jamesthoengsal.blogspot.com
Construction. Pages: Jenis-Jenis Pondasi Pada Struktur Bangunan
Perbedaan Pondasi Dangkal Dan Pondasi Dalam, Berikut Jenis-Jenisnya

source: www.pengadaan.web.id
Perbedaan Pondasi Dangkal dan Pondasi Dalam, Berikut Jenis-Jenisnya …
Berbagai Jenis Pondasi Yang Tahan Gempa | Regina Realty

source: reginarealty.co.id
Berbagai Jenis Pondasi Yang Tahan Gempa | Regina Realty
Teknik Pondasi:Pengertian,Jenis Pondasi Dan Analisa

source: www.situstekniksipil.com
Teknik Pondasi:Pengertian,Jenis Pondasi Dan Analisa
Detail Jenis Tanaman Toga Dan Gambarnya Koleksi Nomer 20

source: www.kibrispdr.org
Detail Jenis Tanaman Toga Dan Gambarnya Koleksi Nomer 20
Perbedaan Pondasi Dangkal Dan Pondasi Dalam, Berikut Jenis-Jenisnya

source: www.pengadaan.web.id
Perbedaan Pondasi Dangkal dan Pondasi Dalam, Berikut Jenis-Jenisnya …
Struktur Pondasi Bangunan Pengertian Dan Jenis Jenis Pondasi

source: www.arsitekdiamond.com
Struktur Pondasi Bangunan Pengertian dan jenis jenis pondasi
Gambar Jenis Jenis Pondasi – 51+ Koleksi Gambar

source: www.kibrispdr.org
Gambar Jenis Jenis Pondasi – 51+ Koleksi Gambar
10 Jenis Pondasi Bangunan Yang Kuat Dan Kokoh – PT Eticon Rekayasa Teknik
![]()
source: eticon.co.id
10 Jenis Pondasi Bangunan Yang Kuat Dan Kokoh – PT Eticon Rekayasa Teknik
Pondasi (Pengertian, Aspek, Jenis-jenis Dan Pembebanan) – Newbietutorial

source: newbietutorial13.blogspot.com
Pondasi (Pengertian, Aspek, Jenis-jenis dan Pembebanan) – Newbietutorial
JENIS JENIS PONDASI TERBARU

source: sabenatamsis.blogspot.com
JENIS JENIS PONDASI TERBARU
Bahtera Jaya Buana CV: Jenis-Jenis Pondasi Dan Fungsinya

source: bahterajayabuana.blogspot.com
Bahtera Jaya Buana CV: Jenis-Jenis Pondasi dan Fungsinya
Ini Dia 8 Jenis Pondasi Rumah Yang Umum Digunakan – Strategis.id

source: strategis.id
Ini Dia 8 Jenis Pondasi Rumah yang Umum Digunakan – Strategis.id
Jenis-Jenis Pondasi: Panduan Lengkap Pemilihan Untuk Proyek | StructuraHub

source: structurahub.com
Jenis-Jenis Pondasi: Panduan Lengkap Pemilihan untuk Proyek | StructuraHub
jenis jenis pondasi terbaru. Gambar jenis jenis pondasi. Konsep 22+ gambar pondasi rumah 2 lantai